Up-to 20% recession discounts. Will match the price of any "approved" competitor.
Up-to 20% recession discounts. Will match the price of any "approved" competitor.
Don't take chances take control.
You cannot control what you cannot measure.
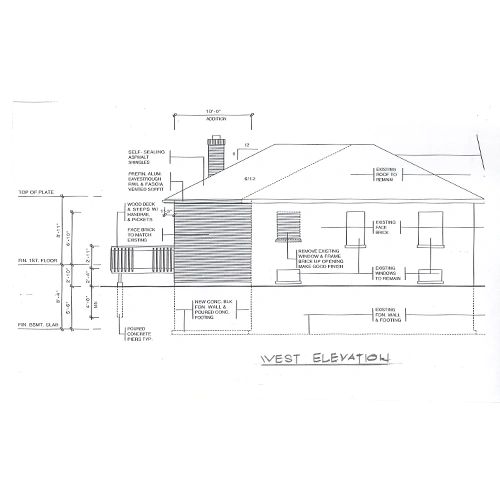
If you are thinking of expanding or improving your existing house or finishing your basement you must have a blueprint, preferable working drawings if cost effectiveness and controling your budget is a top priority.
All drawings done by Structures & Fabrics Home & Building Inspection Inc. are complemented with a work schedule and an estimate.


We inspect addition to existing structures,renovations internal & external and also the installation of home and commercial building accessories.
Segmental Inspections; the commencement of works, during works process and a final inspection on the completion of works.
Structure & Fabrics Home & Building Inspection Inc.
Copyright © 2022 Structure & Fabrics Home & Building Inspection Inc. - All Rights Reserved.
Powered by GoDaddy Website Builder